Terreno en Venta en Pedregal de Schoenstatt, Corregidora, Querétaro
Terreno en VENTA, Pedregal de Schoenstatt, Corregidora, Queretaro. Con proyecto aprobado

Especificaciones
Terreno en VENTA, Pedregal de Schoenstatt, Corregidora, Queretaro. Con proyecto aprobado
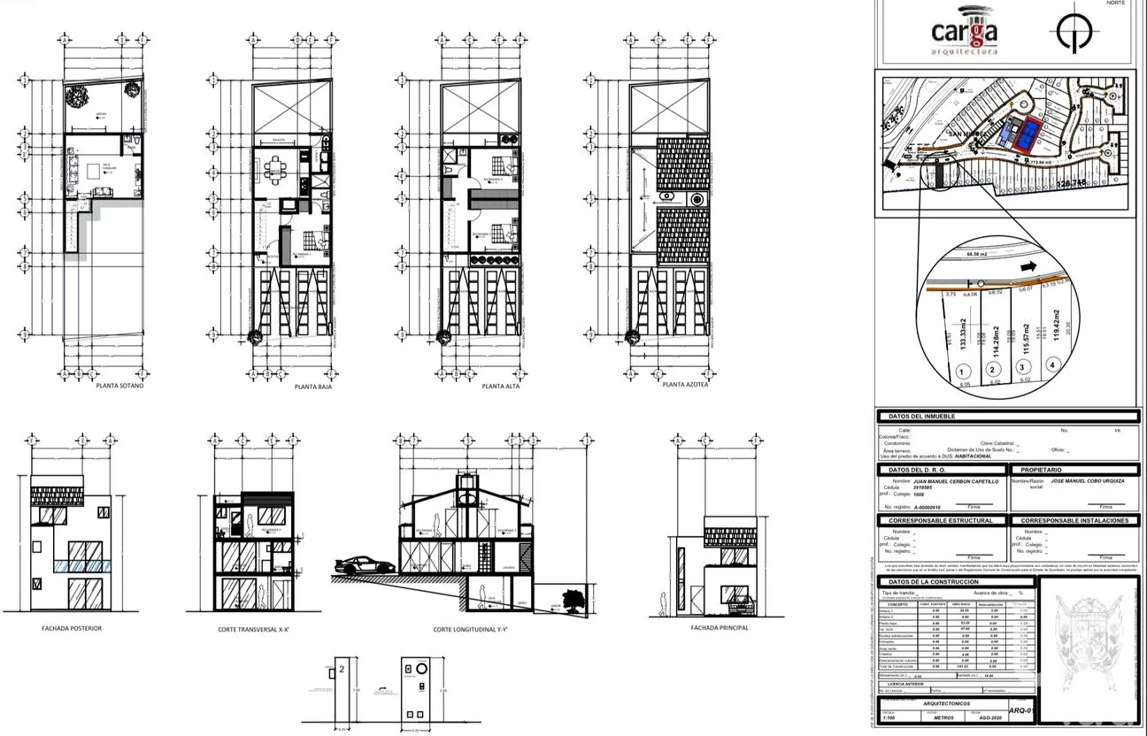
¡Oportunidad única! Terreno en Venta en Pedregal de Schoenstatt, Corregidora, Querétaro. Este terreno cuenta con una superficie de 113 m2 y tiene un uso de suelo residencial, perfecto para construir la casa de tus sueños. Ubicado en una de las zonas más exclusivas de la ciudad, este terreno ofrece la tranquilidad y seguridad que buscas para ti y tu familia.
Tenemos ya un proyecto de construcción aprobado para una casa de 3 recámaras y una de ellas en PB. Es decir, puedes comprar solo el terreno, o terreno con planos o ya la casa con llave en mano, tú eliges.
Pedregal de Schoenstatt se caracteriza por ser una zona residencial con amplias áreas verdes y excelentes servicios. La zona cuenta con escuelas de prestigio y hospitales de primer nivel, garantizando la comodidad y bienestar de sus residentes.
Con fácil acceso desde la Carretera Querétaro-México, este terreno se encuentra en una ubicación privilegiada que te permitirá desplazarte de manera rápida y segura a cualquier parte de la ciudad. Aprovecha esta oportunidad para adquirir un terreno en una de las zonas más exclusivas de Querétaro y construir la vida que siempre has soñado. ¡Contáctanos para más información!






